Architecture


Bibliothèque Nationale Study

Year 1


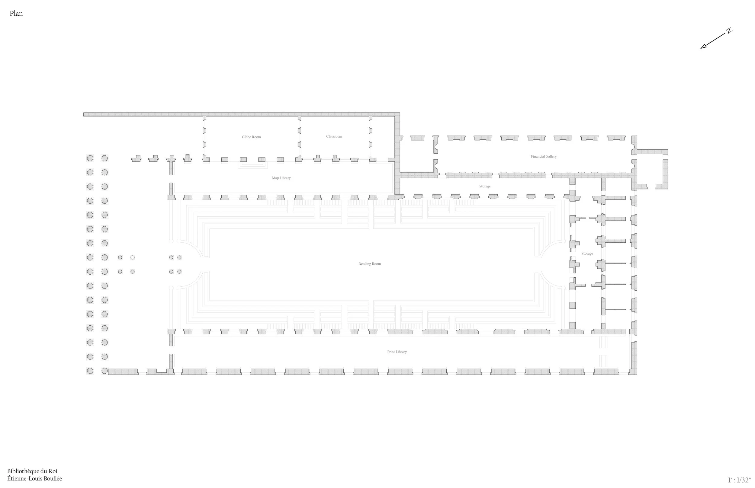
For this project, I created digital drawings inspired by Étienne-Louis Boullée's proposed designs for the Bibliothèque Nationale. The goal of this project was to understand the space of the library and the general construction of libraries.

Drawings


Site Plan, 2025, Rhino & Illustrator, 11” x 17”

Long Section, 2025, Rhino & Illustrator, 11” x 17”

Elevation, 2025, Rhino & Illustrator, 11” x 17”

Short Section, 2025, Rhino & Illustrator, 11” x 17”

Plan, 2025, Rhino & Illustrator, 11” x 17”

Return Back to Architecture

Return Back to Architecture